
Dans le domaine de la rénovation énergétique, comprendre la structure des plans d'un bâtiment est essentiel pour mener à bien un projet de rénovation performant et durable. Les plans sont en effet une représentation graphique détaillée des éléments structurels et fonctionnels du bâtiment. Ce chapitre vise à vous donner une base pour interpréter les différents types de plans et symboles techniques que vous rencontrerez dans vos futures missions.
Les différentes vues sur un plan de maison ou de bâtiment permettent de représenter la structure sous plusieurs angles pour comprendre l’architecture, les dimensions et les détails techniques du projet. Dans un projet de rénovation, les plans sont utiles pour chercher les informations nécessaires au calcul thermique, chiffrer les travaux et visualiser les futurs travaux.
Voici les principales vues utilisées dans les plans :

Le plan de situation est une représentation graphique aérienne qui représente l'emplacement d'un bâtiment par rapport à son environnement immédiat. Il situe le projet dans son contexte géographique, généralement à l'échelle d'un quartier, d'une commune ou d'une zone plus large.
Sur un projet de rénovation énergétique, il permet de repérer les éléments environnants qui peuvent influencer la performance énergétique du bâtiment, comme l’ensoleillement, les vents dominants, ou la proximité des réseaux de chaleur urbains.
Voici un récapitulatif de ce que l’administration doit pouvoir identifier sur le plan de situation :
La ou les parcelles concernée(s) par le projet indiqué.
Le numéro de la ou des parcelle(s) concernée(s).
Le nom de la route passant devant la parcelle.
Un indicateur de points cardinaux parfaitement orienté.
L’échelle des documents.
Qu’est-ce qu’un Plan Local d’Urbanisme ?
Le Plan Local d'Urbanisme (PLU) est un document qui traduit un projet global d'aménagement urbain à l'échelle d'un regroupement de communes ou d'une commune. Il établit les règles d'aménagement du territoire et d'utilisation des sols en délimitant plusieurs zones. Ce plan encadre strictement l'utilisation du sol, les projets de développement urbain, l'architecture des bâtiments, leur impact sur l'environnement et le développement durable.

Le plan de masse est une vue générale aérienne du terrain et de la maison ou du bâtiment, incluant les aménagements extérieurs. Le plan est élaboré à l’échelle et coté dans les trois dimensions (hauteur, largeur, longueur). Il sert à localiser le bâtiment sur le terrain et vérifier son intégration dans l’environnement.
Voici un récapitulatif de tout ce que les services d’urbanisme doivent voir sur un plan de masse pour valider une demande :
Les constructions existantes. Il convient d’illustrer le bâtiment principal et les annexes comme une piscine, véranda, un abri de jardin, garage, etc.
Le projet. L’administration pourra valider l’implantation du projet sur le terrain et le situer par rapport aux éléments existants.
Les limites de votre terrain et ses clôtures. L’administration pourra contrôler le respect des règles de recul et des limites séparatrices.
Les accès au terrain et aux constructions. L’administration pourra valider si les accès, allées, allées de garage, servitudes sont suffisants et qu’elles ne présentent pas un risque pour la sécurité des usagers.
Les aménagements extérieurs. Il convient d’illustrer les dalles et terrasses présentes sur le terrain mais aussi les pylônes, poteaux, barbecues etc.
Les plantations. L’administration pourra valider que les plantations respectent les règles du Code civil et les règles d’urbanisme.
Les réseaux existants ou à créer : alimentation en eau, réseau d’évacuation, réseau électrique, gaz, téléphonique. Si le projet prévoit de procéder à un raccordement ou d’en modifier l’existant, le tracé des réseaux doit apparaître sur le plan de masse. L’administration pourra alors déterminer si une opération de viabilisation est nécessaire.

Le plan de coupe est une représentation graphique montrant le terrain et ses constructions vues de profil. Vue verticale qui coupe le bâtiment pour montrer la hauteur des étages, les fondations, les planchers, et les détails de la toiture. Il permet d’identifier les volumes extérieurs d’un bâtiment, mais aussi son implantation sur le terrain et les variations de pente de ce dernier.
Voici un récapitulatif de tout ce que les services d’urbanisme doivent voir sur un plan de coupe pour valider une demande :
La pente du terrain, tracée depuis la voie publique. Élément central du plan de coupe, elle permet à l’administration d’identifier la façon dont les constructions occupent le sol au regard de la pente. Le trait de coupe doit être reporté sur le plan de masse ou un plan annexe afin de permettre à l’instructeur de bien se repérer dans l’espace.
Les constructions existantes : maison individuelle et toutes ses annexes, même un simple abri de jardin. La hauteur des bâtiments par rapport au terrain naturel doit être indiquée.
Le projet, avec la hauteur de la construction dans son état futur. L’administration pourra valider l’implantation du projet sur le terrain.
Les limites séparatives et les distances entre ces limites et les différentes façades de la construction.
La route, la rue, les fossés, les trottoirs, et les clôtures.
La pente des toitures.
Les éléments souterrains : construction en dessous du niveau du sol, vide sanitaire, bassin de piscine dans le jardin etc.

Le plan de façade est une représentation graphique montrant chaque façade d’une construction : façade avant, arrière, pignon droit et gauche. Tout ce qui se voit de l’extérieur doit y figurer : la disposition des portes et fenêtres, les détails architecturaux, les toitures etc.
Voici un récapitulatif de tout ce que les services d’urbanisme doivent voir sur un plan de façade pour valider une demande :
Les portes et fenêtres.
Les éléments architecturaux : décors, moulures, corniches, pierres apparentes, balustres, garde-corps, terrasses, balcons etc.
Les toitures.
Les cheminées.
Les panneaux solaires (s’il y en a).
Les matériaux utilisés sur l’ensemble des façades.
Les couleurs et l’aspect de tous les éléments visibles sur les façades.

Le plan de toiture constitue une représentation graphique vue du dessus montrant le toit d’une construction. Ce document fait partie intégrante d’un plan de façade. Il permet d’examiner la structure du toit avec les éléments tels que des cheminées, fenêtres de toit, gouttières, et matériaux de couverture.

Le plan d’étage est un dessin à l'échelle qui montre la position des pièces, des équipements et des meubles vus d'en haut. Il sert à analyser l’agencement intérieur (disposition des pièces, cheminement) et l'implantation des cloisons. Il est utilisé pour les travaux d’aménagement intérieur, conception du projet architectural.

Le plan de perspective est une représentation en trois dimensions de la maison ou du bâtiment, pour une vue réaliste. Il permet de visualiser l'apparence finale du bâtiment dans son environnement, y compris les volumes et proportions. Il est utilisé pour présenter un projet et mieux comprendre l'espace et l’esthétique.
Maintenant, découvrons la nomenclature pour mieux lire ces différents plans.
Pour lire un plan, on peut s’appuyer sur la nomenclature d’un plan. Cela désigne les conventions et les codes utilisés pour organiser, identifier et nommer chaque document de plan. Cette nomenclature facilite la lecture et la gestion des plans et documents du chantier, en rendant chaque type de plan facilement identifiable pour les intervenants.
Voici les principaux éléments généralement présents dans la nomenclature des plans d’un chantier de rénovation :
Les cotes sur un plan sont représentées en fonction de l'échelle du plan. Elle vous donne une idée précise des dimensions réelles de l’habitation. L’échelle est toujours indiquée dans un coin du plan.

L’échelle graphique, représentée sous forme de ligne graduée sur les plans, permet de traduire les dimensions réelles de l’objet en dimensions réduites, tout en conservant les proportions exactes. Cela signifie que chaque centimètre sur le plan représente un certain nombre de mètres dans la réalité. Cette norme facilite la compréhension rapide et précise des projets par toutes les parties impliquées. L’échelle graphique doit obligatoirement figurer sur un plan de masse et un plan de coupe.
Une rose des vents est une figure indiquant les points cardinaux : Nord, Sud, Est, Ouest et les orientations intermédiaires, jusqu’à 32 directions. Sur un plan de maison, la rose des vents est souvent représentée par un cercle et la lettre N pour indiquer le Nord. Cela précise comment est orientée la maison. Grâce à cette indication, vous pourrez savoir quelles pièces bénéficieront de plus de soleil et à quel moment de la journée.

Les codes alphanumériques sont des lettres et des chiffres utilisés pour différencier chaque plan. Par exemple, P1-RDC pour le plan du rez-de-chaussée, C1-Coupe pour une coupe spécifique, ou F1-Façade Sud pour la façade Sud.
La numérotation séquentielle consiste à numéroter chaque type de plan, comme E1, E2 pour les étages, ou F1, F2 pour les façades.
Le numéro de révision permet de suivre les mises à jour des plans. Par exemple, P1-RDC-R1 pour la première révision du plan du rez-de-chaussée.
La date est ajoutée en général dans l’en-tête pour indiquer la dernière version validée.
Tous les symboles architecturaux et techniques (murs porteurs, cloisons, portes, fenêtres, réseaux, etc.) sont précisés dans une légende pour faciliter la lecture du plan. Les différents symboles seront abordés tout au long de ce cours.
Indications de matériaux et finitions : Il existe également des codes pour indiquer les matériaux (bois, béton, isolation, etc.) et les types de finitions (peinture, carrelage, etc.). Ces éléments sont abordés dans le chapitre suivant : P1C3 : Repérez les murs, ouvertures et volumes intérieurs.
Tous les plans indiquent les cotes (hauteurs, longueurs) et distances entre éléments structurels pour préciser les dimensions. Ces éléments sont également abordés dans le chapitre suivant : P1C3 : Analysez les niveaux et étage du bâtiment.
On peut également repérer des zones de travaux spécifiques, par exemple des zones à traiter pour l’isolation, les équipements de chauffage, ou les fenêtres.
Enfin, on peut retrouver des notes spécifiques et annotations qui sont des instructions supplémentaires pour certaines étapes du chantier. Par exemple, des zones nécessitant une attention particulière en termes de sécurité ou réglementation thermique.
Ces éléments vont aider tous les intervenants à suivre facilement les différentes étapes et éléments du projet de rénovation. Il est donc important de savoir les interpréter.

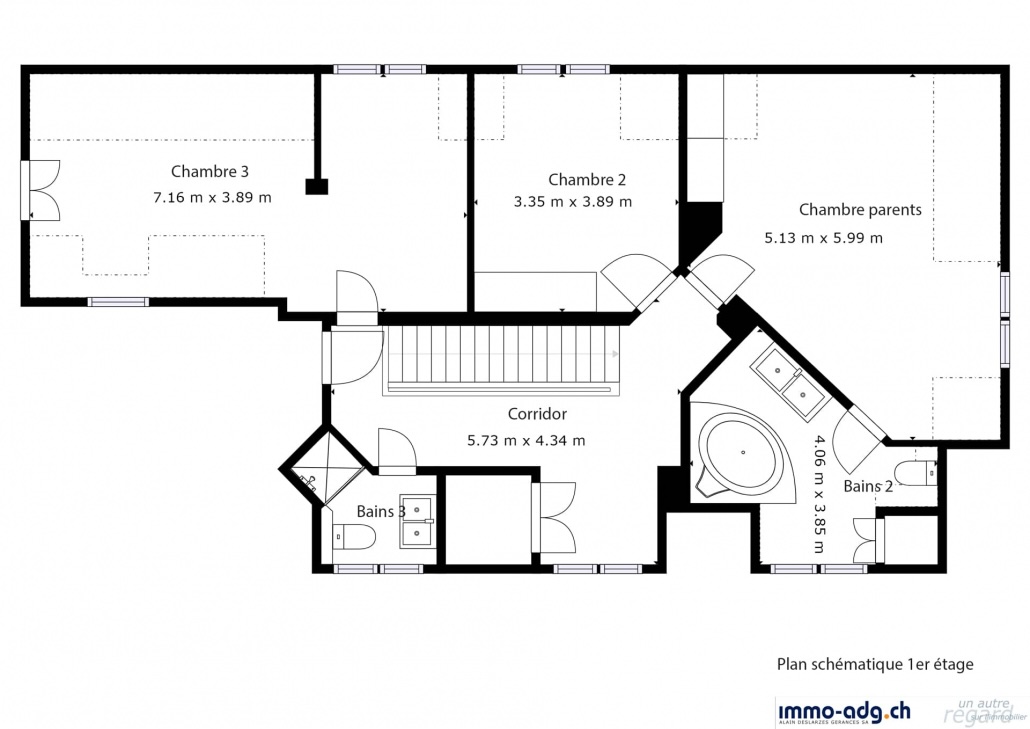
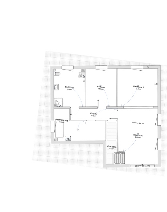
Vos clients, un couple de cinquantenaire avec un adolescent, habitent une maison individuelle des années 70 à Dijon. Afin d’entamer leur projet de rénovation énergétique, ils vous ont transmis plusieurs plans de leur maison. Ces documents sont essentiels pour comprendre la structure de l’habitation et identifier les points clés à prendre en compte dans votre diagnostic.
Votre première tâche consiste à examiner ces plans et à analyser les éléments architecturaux et fonctionnels qu’ils révèlent. Cette étape initiale posera les bases de vos futures recommandations.


Votre première tâche consiste à :
Identifier les types de plan fournis.
Analyser la configuration générale de ces espaces.
De quel type de plan s’agit-il pour la maison ? Et pour le sous-sol ?
Que pouvez-vous dire de la configuration de la maison ?
Que pouvez-vous dire de la configuration du sous-sol ?
Une fois que vous avez fini, vous avez ce corrigé à disposition.
Il existe différentes vues pour fournir une vision complète d’un projet de rénovation.
Certains plans sont obligatoires pour être validés par les services urbanismes et doivent comporter obligatoirement un certain nombre d'éléments pour étudier le projet de rénovation.
La nomenclature des plans permet à tous les intervenants d’avoir la même lecture du plan.
Vous en savez plus sur les plans et la manière de les lire et de les utiliser. Maintenant, abordons les caractéristiques architecturales principales d’un bâti.