
Les plans d'un bâtiment et d'une maison individuelle présentent plusieurs différences, en raison de l'échelle, des fonctionnalités, et des types de constructions concernés.
En maison individuelle, les plans sont généralement plus simples, car une maison comporte moins d'étages et de pièces. La structure est plus petite et les détails techniques moins complexes à représenter. Dans un bâtiment, les plans sont plus complexes, car ils doivent inclure plusieurs étages, des zones communes, des unités distinctes (appartements, bureaux, etc.), et des systèmes partagés (ascenseurs, escaliers, réseaux techniques).
En maison individuelle, les éléments structurels comme les murs porteurs et les fondations sont plus basiques. Il n'y a souvent qu'un ou deux niveaux à gérer. Dans un bâtiment, la structure doit supporter plus de poids (plusieurs étages). Les murs porteurs, colonnes, dalles, fondations renforcées, et structures antisismiques sont plus détaillés sur les plans.
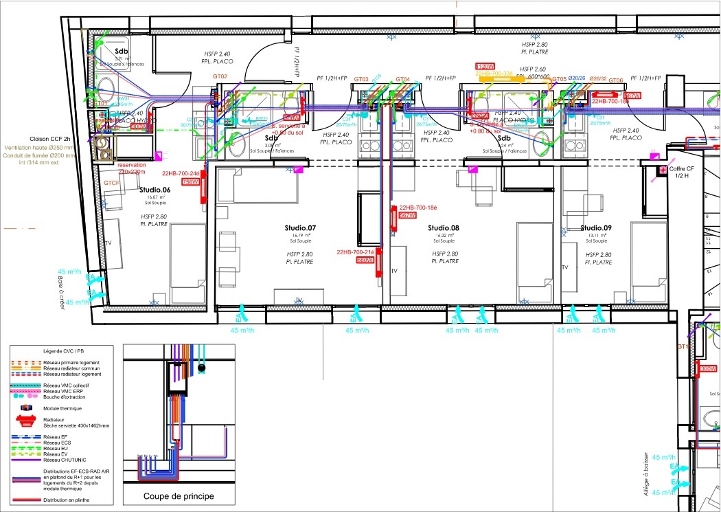
En maison individuelle, les systèmes de chauffage, de ventilation, d'eau et d'électricité sont généralement plus simples, adaptés à une seule unité. Les raccordements sont souvent directs au réseau public. Dans un bâtiment, il est nécessaire d'intégrer des systèmes techniques centralisés ou partagés pour plusieurs unités (réseaux de chauffage collectif, ascenseurs, réseaux de ventilation). La gestion des réseaux (eau, électricité, gaz) est plus complexe, nécessitant des détails sur les gaines techniques et les canalisations.

En maison individuelle, les réglementations sont principalement centrées sur les normes de construction locales, les exigences énergétiques (RT 2020), et les distances par rapport aux voisins (PLU). Dans un bâtiment, en plus des réglementations pour la maison, les bâtiments doivent se conformer à des normes supplémentaires concernant la sécurité incendie, l’accessibilité des personnes à mobilité réduite, la gestion des parties communes, et les règles de copropriété.
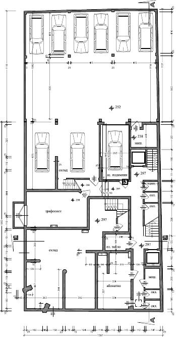
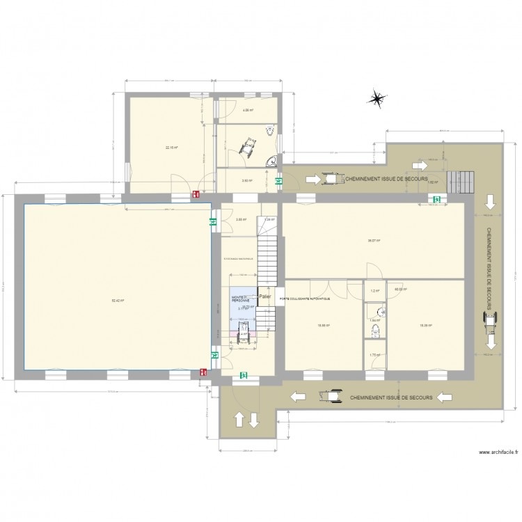
En maison individuelle, il n'y a pas de parties communes. Le plan se concentre uniquement sur les espaces privés, comme les pièces de vie et les espaces extérieurs. Dans un bâtiment, les plans doivent intégrer les parties communes comme les couloirs, halls d'entrée, cages d'escaliers, ascenseurs, locaux techniques, et parkings. Il y a aussi des zones dédiées à la gestion des déchets et des espaces verts collectifs.

En maison individuelle, les plans concernent principalement un espace privé avec des zones de vie (chambres, salon, cuisine), et éventuellement un jardin. Dans un bâtiment, il faut gérer des volumes pour plusieurs unités d’habitation ou de travail, ainsi que les espaces partagés et des infrastructures plus complexes (terrasses, toits végétalisés, parkings souterrains).

En maison individuelle, la circulation est simple, limitée aux pièces de vie et aux escaliers s’il y a un étage. Dans un bâtiment, les plans doivent prévoir des systèmes de circulation plus élaborés avec des couloirs, des escaliers, des ascenseurs, et des issues de secours, en tenant compte des flux de personnes.

En maison individuelle, le niveau de détail est souvent plus léger, car la maison a moins de contraintes techniques. Dans un bâtiment, les plans doivent fournir des détails très précis, notamment sur les réseaux techniques (gainage, plomberie, câblage), et respecter des normes spécifiques en termes de ventilation, d'isolation phonique et thermique.
Dans un bâtiment, les plans sont plus complexes, car les volumes sont plus grands, il y a plusieurs étages et des parties communes.
Dans un bâtiment les systèmes techniques sont centralisés ou partagés pour plusieurs unités.
Les bâtiments sont soumis à des normes supplémentaires par rapport aux maisons.
Après avoir exploré les spécificités architecturales et structurelles d'un bâtiment, il est essentiel d'intégrer les contraintes techniques et réglementaires qui guideront la rénovation.