
Dans un projet de rénovation énergétique, il arrive souvent que des travaux induits ou des travaux complémentaires conduisent à modifier le réseau d’eau (déplacement d’une salle de bain), de chauffage ou d’électricité. Il est donc important de savoir localiser ces réseaux.
Pour localiser les réseaux d’eau, d’électricité et de gaz sur un plan de bâtiment, il existe plusieurs conventions et éléments graphiques à prendre en compte.
Les plans de situation montrent souvent l'emplacement des réseaux extérieurs (eau, électricité, gaz) qui alimentent le bâtiment. Cela inclut les branchements au réseau public, ainsi que les compteurs d'eau et d'électricité. Vous pouvez rechercher des notations indiquant les chemins d'accès pour ces réseaux.
Les coupes transversales du bâtiment permettent de visualiser les réseaux à l'intérieur des murs, des plafonds et des planchers. Cela montre comment les réseaux sont intégrés dans la structure. Les coupes peuvent également indiquer les points d'entrée et de sortie des réseaux, comme les robinets, les prises électriques, ou les chaudières.
Les détails techniques fournissent des informations précises sur la manière dont les réseaux sont installés. Cela inclut les connexions, les vannes, et les dispositifs de sécurité pour le gaz et l'eau. Ces détails sont cruciaux pour comprendre comment chaque réseau est mis en œuvre.
Les cotes et les mesures peuvent aussi donner des indications sur les réseaux, comme les diamètres des conduites d’eau ou la longueur des câbles électriques. Assurez-vous de noter ces dimensions pour une installation correcte.
Sur certains plans, des étiquettes peuvent être ajoutées pour indiquer des caractéristiques spécifiques des réseaux, comme la pression de l'eau ou la puissance électrique. Les notes peuvent également fournir des recommandations pour l'installation ou l'entretien.
Enfin, les documents techniques qui accompagnent le plan (comme le cahier des charges) peuvent également fournir des informations détaillées sur les spécificités des réseaux à installer ou à vérifier.
Découvrons maintenant en détail les différents réseaux.
4 réseaux d’eau sont à prévoir dans une maison :
Le réseau d’eau froide
Le réseau d’ eau froide est le premier point d’entrée de l’eau dans une maison. L’eau du réseau public passe par un tuyau. Puis grâce à un système de pieuvre, différents tuyaux de diamètres inférieurs distribuent l’eau dans les différentes pièces de la maison.
Le réseau d’eaux usées
Le réseau d’eaux usées permet la collecte et l’évacuation des eaux sales d’une maison. En effet, il n’est pas possible de faire repartir de l’eau usée dans les mêmes canalisations qui distribuent une eau propre dans la maison.
Il est donc nécessaire de mettre en place un réseau en parallèle du réseau d’eau froide et relié à un système d’évacuation vers le réseau d’assainissement.
Le réseau d’eau chaude sanitaire
Le réseau d’Eau Chaude Sanitaire (ECS) est un réseau qui permet aux robinets de faire sortir directement de l’eau chaude. Il est donc relié à un équipement de production d’Eau Chaude Sanitaire.
Le réseau de chauffage
Le réseau de chauffage est installé dans une maison uniquement quand le système de chauffage choisi par le client utilise une circulation d’eau chaude.
Les circuits d’eau sont dessinés en traits épais, de couleur.

Bleu pour l’arrivée d’eau froide
Rouge pour l’arrivée d’eau chaude
Noir trait plein pour les descentes d’eaux fécales
Noir trait pointillé pour les descentes d’eaux usées sanitaires

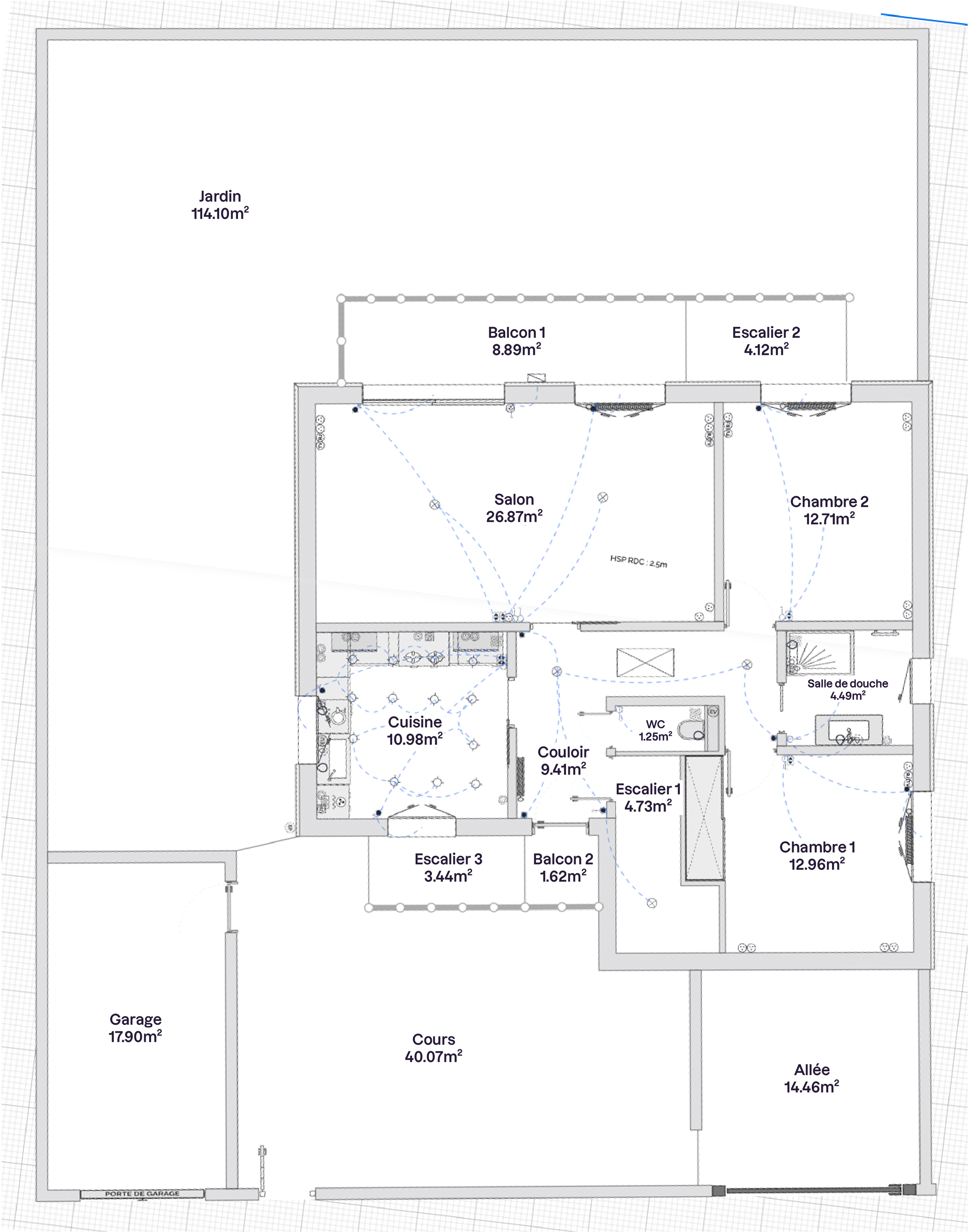
Le plan d’implantation électrique permet de formaliser les emplacements des équipements électriques. Il s'agit d'un document indispensable pour chiffrer l’installation mais aussi (et surtout) pour l’installateur lui-même qui en aura besoin avant de démarrer son chantier.

Les principaux équipements électriques présents dans un logement sont les suivants :
simples,
va et vient,
classiques : ampoule placée au plafond,
en applique : ampoule placée au mur),
spots : point lumineux orientable placée au plafond.
Les prises multimédia : TV , réseaux , téléphone
Les prises spécialisées : four, plaques de cuisson, lave vaisselle, lave linge, sèche linge réfrigérateur.
Les installations liées au chauffage : radiateurs, cumulus, ballon d'eau chaude, chaudière, chauffe-eau, etc.
Les différentes installations : VMC, volets roulants, climatisation, système d'alarme, domotique, détecteurs de fumée, etc.
Les extérieurs : éclairage du jardin, portail électrique, piscine, etc.
Chacun de ces éléments est représenté sur un plan par des symboles électriques normalisés, qui vous permettront d’indiquer sur le plan l’emplacement de chaque équipement.

Vous pouvez retrouver d’autres symboles électriques ici.
Les plans incluent un schéma global des canalisations qui montre l’entrée principale du gaz dans le bâtiment et son parcours jusqu’aux différentes pièces, pour relier des appareils spécifiques, comme la chaudière, le chauffe-eau ou la cuisinière.
Ces appareils, ainsi que les tuyaux de gaz sont identifiés par des symboles spécifiques dans la légende du plan, que l’on peut retrouver sur le site d'archifacile plomberie et archifacile chauffage.
Les conduits ou les trémies sont des espaces où on fait passer des éléments techniques comme des tuyaux de chauffage, des conduits de fumée, des tuyaux de ventilation, des écoulements d’eau, des câblages électriques, etc.
Il existe des conventions d’informations qu’on peut indiquer sur le plan par rapport à ce qui passe dans ces conduits.
Voici les principales ci-dessous :

En général, les conduits sont représentés différemment suivant l’endroit où ils se trouvent :

Pour identifier les installations de ventilation et de chauffage sur un plan de bâtiment, il existe plusieurs conventions et éléments graphiques à prendre en compte.
Vous pouvez consulter la légende du plan pour comprendre les symboles utilisés. Chaque symbole devrait être accompagné d'une description claire. Les notations peuvent également préciser des détails, comme les types d’appareils de chauffage ou de ventilation.
Les coupes transversales du bâtiment permettent de voir les installations de chauffage et de ventilation à l'intérieur des murs, des plafonds et des planchers. Les sections montreront comment les conduits de ventilation sont intégrés et où les radiateurs ou les chaudières sont situés.
Les détails techniques fournissent des informations spécifiques sur la manière dont les systèmes de chauffage et de ventilation sont installés, y compris les connexions, les régulations et les points d'accès pour l'entretien. Ces détails peuvent également montrer les dimensions des appareils et des conduits.
Les plans de façade peuvent montrer les éléments extérieurs associés à la ventilation, tels que les grilles de ventilation ou les sorties de chaudières. Les dispositifs de chauffage peuvent également être visibles sur les façades, en fonction de leur type.
Les cotes sur le plan peuvent indiquer la taille et la position des installations de chauffage et de ventilation. Les dimensions sont essentielles pour s'assurer que les équipements sont correctement dimensionnés pour l'espace.
Enfin, les documents techniques comme le cahier des charges peuvent donner des détails sur les spécifications des systèmes de chauffage et de ventilation à installer.
Le circuit de chauffage ne doit se dessiner que dans un plan spécifique et schématique. Les chaudières et les radiateurs sont souvent représentés par des symboles spécifiques généralement indiqués dans la légende.
Les circuits de chauffages doivent se dessiner en couleur, en trait épais :

Bleu pour l’eau froide (sortie des radiateurs)
Rouge pour l’eau chaude (entrée des radiateurs)

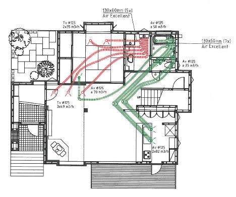
La Ventilation Mécanique Contrôlée (VMC) consiste à assurer de manière automatique le renouvellement et l’évacuation de l’air d’un logement ou d’un local à l’aide d’un ventilateur.
Son fonctionnement repose sur deux circuits indépendants :
Une entrée d’air neuf par ventilation (bouches de soufflage),
Une sortie d’air vicié par extraction (bouches d’extraction).
La VMC permet de maîtriser les débits d’air extraits et insufflés en fonction des besoins pour un renouvellement d’air optimisé. Elle évite les courants d’air et les variations de débit contrairement à la ventilation naturelle. L’étude dimensionnement VMC permet d’optimiser le renouvellement de l’air d’un bâtiment.
Pour cela, le circuit de ventilation est dessiné dans un plan spécifique et schématique :
Le caisson de ventilation et les bouches sont souvent représentés par des symboles et généralement indiqués dans la légende.
Les gaines de ventilation sont dessinées en trait épais souvent en couleur, parfois avec des flèches indiquant le sens du flux d'air.




Pour en savoir plus sur la ventilation, suivez ce chapitre du cours "Découvrez les postes de rénovation chez un particulier".
Pour repérer les extensions ou modifications techniques sur un plan de bâtiment, voici les étapes et éléments clés à considérer :

Des notes explicatives peuvent indiquer les changements apportés, par exemple, "nouvelle extension" ou "modification de l'ouverture".
Les couleurs peuvent être utilisées pour différencier les parties anciennes des nouvelles. Par exemple, une couleur pour les éléments existants et une autre pour les nouvelles extensions.
Les ombres peuvent également être ajoutées pour donner une impression de profondeur et de distinction entre les différentes sections.
Les détails de construction associés aux extensions ou modifications techniques devraient être présents sur le plan. Cela inclut :
Les dimensions précises des nouvelles structures.
Les matériaux utilisés pour les nouvelles parties.
Sur un plan de masse, les extensions peuvent être mises en évidence par un contour distinct. Cela permet de visualiser l'impact sur l'espace extérieur et les relations avec les bâtiments voisins.
Des annotations sont souvent ajoutées pour expliquer les modifications. Recherchez des notes qui précisent :
La nature de la modification (ajout de fenêtres, agrandissement de pièces, etc.).
Les raisons des changements, par exemple, pour améliorer l'efficacité énergétique.
Les coupes et élévations montrent souvent des détails sur les modifications. Ils permettent de voir comment les nouvelles structures s'intègrent au bâtiment existant. Ces vues permettent aussi d’évaluer les impacts sur la hauteur et le volume du bâtiment.

Les plans de services peuvent montrer comment les installations existantes (électricité, plomberie, etc.) ont été modifiées ou étendues pour s’adapter aux nouvelles structures. Cela inclut les nouvelles entrées ou sorties pour les systèmes de chauffage, ventilation, et plomberie.
Consultez la légende du plan pour toute notation concernant les extensions et modifications. Cela peut inclure des symboles ou des codes spécifiques utilisés pour indiquer les nouvelles structures.
Enfin, les documents techniques accompagnant le plan (comme les plans d’exécution ou les cahiers des charges) peuvent fournir des détails supplémentaires sur les modifications prévues.

Dans le cadre de votre mission en rénovation énergétique, vos clients vous ont transmis des plans détaillant certains réseaux présents dans leur maison. Ces réseaux jouent un rôle essentiel dans le confort, la sécurité, et la performance énergétique de leur habitation. Votre objectif est d’examiner ces éléments pour poser un diagnostic et préparer des recommandations adaptées.
En complément, vous leur proposez également un système de ventilation pour améliorer le renouvellement de l’air et limiter les pertes énergétiques.


Analysez les réseaux représentés sur le plan fourni :
Identifiez les éléments clés, comme les équipements, les connexions, et leur disposition dans les différentes pièces de la maison.
Étudiez le système de ventilation proposé :
Interprétez les informations concernant son fonctionnement et son impact potentiel sur la maison.
Pour le premier plan :
De quel type de réseau s’agit-il ?
Quel type de lampes est utilisé dans la cuisine ?
Combien d’ampoules peut-on fixer dans le salon ?
Combien y a-t-il de prises simples dans le salon ?
Comment peut-on savoir que les volets des chambres sont électriques ?
Pour le deuxième plan :
De quel type de ventilation s’agit-il ?
Une fois que vous avez fini, vous avez ce corrigé à disposition.
Les infrastructures techniques sont représentées sur un plan technique spécifique.
Ces plans sont indispensables pour les entreprises qui vont réaliser les travaux et doivent être validés en amont de la pose des cloisons.
Les infrastructures techniques sont représentées par des symboles spécifiques, qui sont souvent annotés dans la légende.
Jusqu’à présent, nous avons abordé les grandes généralités communes aux maisons et aux bâtiments. Abordons maintenant les différences.