Identifiez les caractéristiques architecturales principales

Dans une démarche de rénovation énergétique, identifier les caractéristiques architecturales principales du bâtiment permet d'en comprendre les spécificités et de repérer les éléments à traiter en priorité. Ce chapitre vise à vous outiller pour analyser les composants majeurs de la structure d'un bâtiment.

La première partie vous guidera dans la détection des éléments essentiels qui structurent l’espace, tels que les murs porteurs, les cloisons, les portes et fenêtres, ainsi que la distribution des volumes. Ensuite, la seconde partie, mettra l’accent sur la compréhension des différents étages, des hauteurs de planchers, et des escaliers pour une vue complète de la circulation verticale et horizontale. Enfin, dans la troisième partie, vous apprendrez à interpréter les dimensions pour maîtriser les proportions et visualiser le volume du bâtiment dans sa globalité.

Repérez les murs, ouvertures, et volumes intérieurs

1. Les murs

Sur un plan, les murs sont représentés par un double trait

Par convention, un mur coupé par le plan de niveau ou par le trait de coupe est "poché", soit en noir, soit par des hachures. La hachure est choisie en fonction du matériau qui est coupé.

Tableau des hachures principales utilisées en dessin technique. Chaque type de matériau (maçonnerie, bois, béton, isolations, panneaux, métal) est représenté par un motif distinct pour indiquer son usage ou état (par exemple : existant, à démoli
Hachures principales (Source : Coumans et Brison)

Les éléments porteurs, qui supportent des charges structurelles, et les éléments non porteurs, qui n'ont pas de fonction structurelle, sont distingués par leur représentation graphique. Voici comment les reconnaître :

Les éléments porteurs
  • Murs porteurs : Ils sont représentés par des traits épais ou double trait plein. Ces murs assurent la stabilité de la structure et soutiennent les planchers, les toitures, etc. Souvent, les éléments porteurs sont en béton, brique ou parpaing.

  • Colonnes et poutres : Ces éléments structurels sont aussi représentés par des traits épais ou des formes spécifiques comme des rectangles ou des carrés pour les colonnes. 

Les éléments non porteurs
  • Cloisons : Ces éléments sont souvent représentés par des traits plus fins que ceux des murs porteurs. Les cloisons ne supportent pas la structure du bâtiment et servent uniquement à la séparation des espaces. Les cloisons sont en matériaux plus légers : plâtre, bois, plaques de plâtre.

Plan d'étage détaillé d'un bâtiment comprenant plusieurs pièces. Les murs porteurs (trait épais) et cloisons (trait fin) sont clairement indiqués.
Plan d’étage d’un immeuble avec les murs porteurs en traits épais et les cloisons en traits fins (Source bibtp)

2. Les ouvertures : portes et fenêtres

Les portes battantes sont représentées par un rectangle coupé au milieu par un arc de cercle montrant le sens d'ouverture.

Les portes coulissantes sont symbolisées par un rectangle et la flèche de sens d’ouverture de la porte.

Les portes tournantes (généralement dans les bâtiments d’affaire) sont symbolisées par un rond.

Arc pour porte simple. Deux arcs pour porte double. Arc et triangle pour porte anti-feu. Ligne et flèche pour coulissante. Cercle pour tournante.
Représentation symbolique des portes.

Les fenêtres sont représentées par deux traits parallèles dans un mur. Les symboles peuvent varier selon le type de fenêtre.

Les fenêtres de toit sont généralement représentées par une forme carrée ou rectangulaire dans un toit avec des lignes inclinées pour signifier la pente du toit.

Symboles de fenêtres : ouverture simple, fenêtre fixe, battant droit ou gauche, fenêtre double, coulissante, abattant, et œil-de-bœuf (ronde).
Représentation symbolique des fenêtres.

3. Les volumes intérieurs

Les pièces sont généralement délimitées par des murs et sont souvent nommées (chambre, salle de bain). Sur un plan d’étage, les dimensions des pièces peuvent être indiquées.

Les meubles (lit, table, cuisine) et les équipements (douche, lavabo) sont représentés pour visualiser l’occupation de l’espace.

Symboles pour appareils sanitaires : baignoire encastrée, receveur de douche, bidet, W.C., lavabo, évier avec égouttoir, cuisinière (2 plaques), chaudière.
Représentation symbolique des appareils sanitaires
Symboles pour mobilier : armoire, commode, table avec chaises, fauteuil, lit double (triangle au centre), lit simple (triangle sur une moitié).
Représentation symbolique des meubles

Analysez les niveaux et étages du bâtiment

Pour analyser les niveaux et étages d’un bâtiment sur un plan, plusieurs éléments clés permettent de visualiser et comprendre la répartition des espaces verticaux. Voici les étapes et les éléments à observer :

1. Nomenclature des niveaux

Les plans utilisent souvent des abréviations ou des noms pour indiquer les différents étages :

  • RDC : Rez-de-chaussée.

  • R+1, R+2, etc. : Étage 1, Étage 2, etc.

  • Sous-sol ou SS : Niveau sous le rez-de-chaussée.

Par exemple, un plan d’étage R+1 indique le premier étage au-dessus du rez-de-chaussée.

2. Cotes altimétriques (hauteur)

Les cotes altimétriques ou niveaux d'altitude indiquent la hauteur des différents étages par rapport à un point de référence, souvent le niveau du sol extérieur.

Ces cotes sont indiquées par des chiffres placés sur les plans en coupe et d’étage, et ils précisent les hauteurs entre chaque étage.

Par exemple, si une pièce du rez-de-chaussée est cotée à +0,00 m et le premier étage à +3,00 m, cela signifie que le premier étage se situe à 3 mètres au-dessus du sol.

3. Escaliers et ascenseurs

Les escaliers sont représentés avec des lignes en pente et une flèche qui indique le sens de montée ou descente entre les niveaux. Sur les plans d’étage, ils montrent où et comment on passe d’un étage à l’autre. Une flèche indique généralement le sens de montée ou de descente. Sur les plans en coupe, ils permettent de visualiser les hauteurs entre les étages. Chaque marche est représentée par un rectangle ou une série de rectangles superposés.

Symboles d'escaliers : colimaçon (circulaire), demi-tournant (palier central), escalier droit (en ligne), quart-tournant (angle à 90°). Chaque type est illustré avec proportions et trajectoire d'accès.
Représentation symbolique d’un escalier

4. Lecture des plans

Vous pouvez également vous servir :

  • du plan d’étage qui montre la disposition des pièces, les murs, les ouvertures, ainsi que les escaliers ou ascenseurs permettant d’accéder aux autres niveaux.

  • du plan en coupe pour voir la hauteur des niveaux, l'épaisseur des planchers, ainsi que la position des différents éléments (escaliers, fenêtres, etc.).

  • du plan de perspective qui aide à visualiser la relation entre les niveaux et offre une représentation plus réaliste des espaces verticaux. Elles sont souvent utilisées pour comprendre l'agencement global des niveaux et leur interaction avec les autres parties du bâtiment.

Décodez les cotes et mesures figurant sur les plans

La cotation indiquée sur un plan est en fait le cahier des charges dimensionnel que doit respecter le professionnel qui doit réaliser les travaux. Il est essentiel de comprendre les conventions graphiques et les notations qui y figurent. Voici les éléments clés à prendre en compte :

1. Les unités de mesure

Les dimensions sur les plans sont généralement en mètres (m) ou centimètres (cm), selon le niveau de détail du plan. Les unités sont précisées à côté des chiffres ou dans la légende du plan.

2. Les cotes dimensionnelles (longueur, largeur)

Les cotes dimensionnelles indiquent les dimensions globales d'un élément ou d'un espace. Elle peut être utilisée pour montrer les longueurs, largeurs, hauteurs, épaisseurs, ou profondeurs de différents éléments (par exemple, la hauteur d’un mur, la largeur d’une porte, ou l’épaisseur d’une cloison). Elle aide à comprendre l’encombrement d’un objet ou d’une pièce dans l’espace.

Elles sont généralement représentées par des lignes de cote avec des traits obliques aux extrémités ou des boules. Les dimensions sont indiquées au-dessus ou à proximité des lignes.

Plan détaillé en coupe d’un mur avec portes. Les épaisseurs des murs, dimensions des ouvertures, hauteurs (en cm), et angles d’ouverture des portes sont indiqués. Hachures différencient les matériaux porteurs et cloisons.
Exemple de cote dimensionnelle

3. Les cotes linéaires (dimensions horizontales et verticales)

Les cotes linéaires mesurent une distance spécifique entre deux points ou éléments, souvent alignée sur une ligne droite (horizontale ou verticale). 

Elles sont également représentées par des lignes de cote avec des flèches aux extrémités. Les dimensions en mètres ou centimètres sont indiquées au-dessus ou à proximité des lignes. Une ligne de référence (ou trait de cote) relie les deux points cotés, tandis que des lignes d’attache sont perpendiculaires à la ligne de cote et attachées aux éléments concernés (comme les bords des murs).

Mais alors quelle est la différence entre une cote dimensionnelle et une cote linéaire ? 🤔

Sur un plan de maison, une cote dimensionnelle pourrait indiquer la hauteur totale de la pièce, tandis qu'une cote linéaire pourrait donner la distance exacte entre le sol et le bas de la fenêtre.

4. Les cotes altimétriques (hauteurs et niveaux)

Les cotes d’altitude sont utilisées sur des plans en coupe pour indiquer la hauteur des différents niveaux ou éléments (comme les planchers, plafonds, fenêtres, etc.). Elles sont souvent exprimées par rapport à un point de référence (généralement le niveau du sol) et sont notées sous forme de + ou -, suivi d'une valeur.

Coupe transversale d'une maison à deux étages avec sous-sol. Les hauteurs des niveaux, la pente du terrain et les combles aménageables sont indiqués. Toiture en tuiles inclinée, escalier intérieur et garage en sous-sol.
Représentation des cotes altimétriques sur un plan de coupe d’une maison (Source : Construires)

5. Les cotes d’épaisseur

Les cotes d’épaisseur servent à indiquer l’épaisseur des murs, des planchers ou des toitures sur les plans en coupe. Elles sont importantes pour comprendre la composition structurelle du bâtiment.

Par exemple, un mur extérieur peut être noté comme ayant 30 cm d'épaisseur.

6. Les cotes globales et partielles

Les cotes globales indiquent les dimensions globales d'un espace ou d'un élément, comme la longueur totale d'une façade ou d'une pièce. Les cotes partielles précisent les dimensions intermédiaires de différents éléments.

Par exemple, la distance entre deux fenêtres ou deux portes.

Mais alors quelle est la différence entre une cote globale et une cote partielle ? 🤔

Si un mur mesure 10 mètres de long, avec trois fenêtres de 2 mètres chacune, les cotes partielles peuvent indiquer les distances entre ces fenêtres, tandis que la cote globale sera la longueur totale du mur.

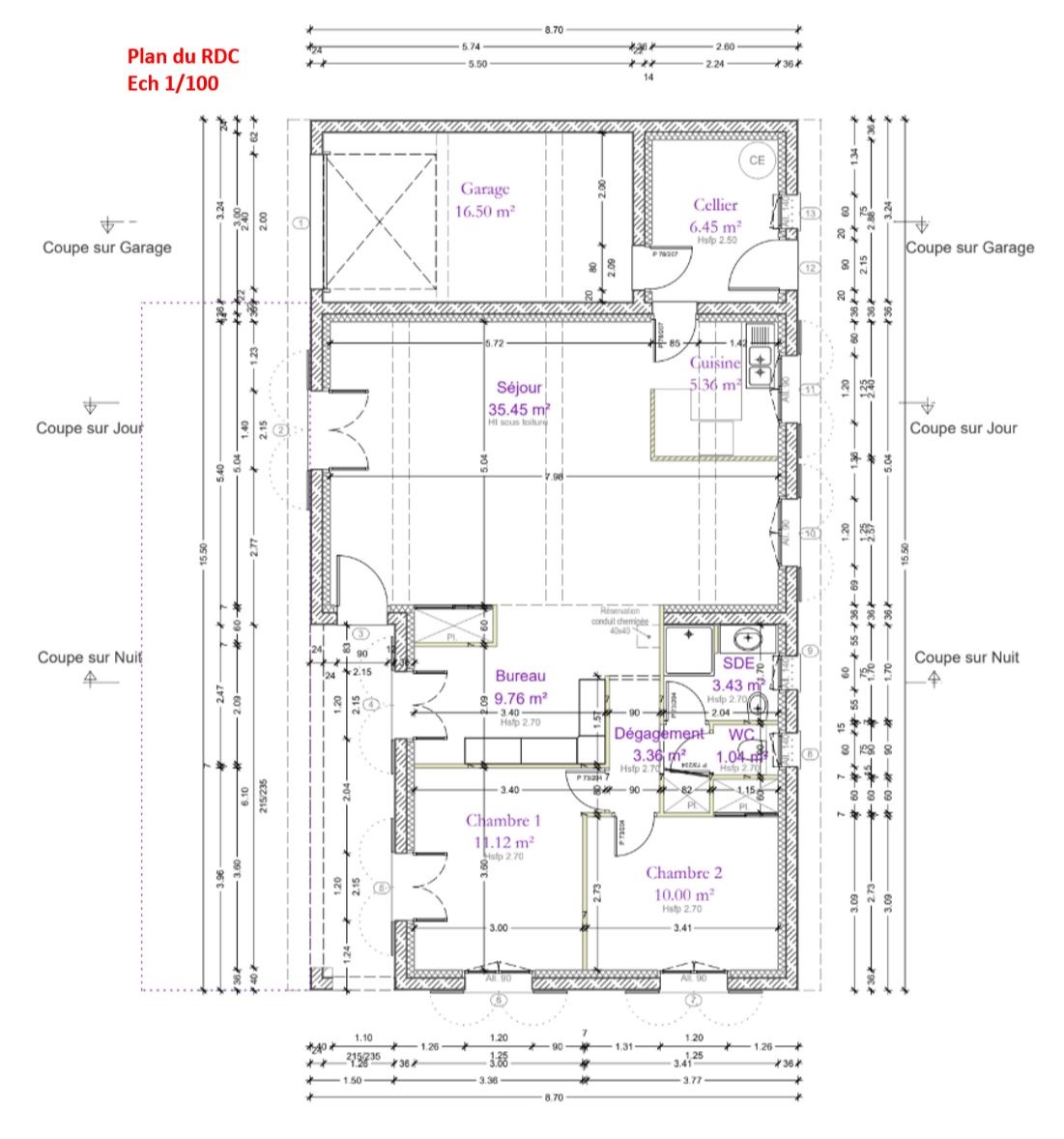
Plan du rez-de-chaussée à l’échelle 1/100. Inclut un séjour (35,45 m²), cuisine, garage, cellier, bureau, deux chambres, une salle d'eau et WC. Les dimensions précises et coupes sont indiquées, avec annotations pour chaque espace.
Exemple de cotes globales, cotes partielles sur un plan d’étage (Source : Alexandre Wack)

7. Les cotes entre axes

Pour les éléments porteurs comme les murs ou les poutres, les cotes peuvent indiquer la distance entre les axes des éléments (et non pas les bords extérieurs). Ces cotes sont cruciales pour l’alignement structurel du bâtiment.

Par exemple, pour des murs porteurs, la cote pourrait indiquer la distance entre les axes centraux des murs, plutôt qu'entre leurs bords extérieurs.

8. Les repères de dimensions

Sur les plans, des repères chiffrés ou numérotations peuvent être ajoutés pour indiquer des éléments précis (comme des ouvertures ou des détails techniques).

Par exemple, une fenêtre pourrait être notée F1, et la cote indiquerait les dimensions spécifiques de cette fenêtre.

9. Les escaliers et hauteurs de marche

Pour les escaliers, les cotes précisent la hauteur des marches et la longueur des paliers, souvent sur des plans en coupe ou des détails spécifiques. Cela aide à vérifier la conformité aux normes de construction.

À vous de jouer

Vos clients souhaitent optimiser l’espace de leur maison en rénovant certaines parties du rez-de-chaussée. Parmi leurs idées principales :

  1. Supprimer la séparation entre le salon et la chambre 2 pour créer une pièce de vie plus spacieuse.

  2. Améliorer l’isolation thermique des fenêtres, qu’ils jugent vieillissantes.

Cependant, avant de valider ces propositions, il est crucial d’analyser le plan pour évaluer la faisabilité des travaux. Vous devez notamment :

  • Déterminer si les murs séparant le salon de la chambre 2 sont porteurs.

  • Faire un inventaire précis des fenêtres présentes dans chaque pièce, en identifiant leur type (simple vitrage, double vitrage, dimensions, etc.).

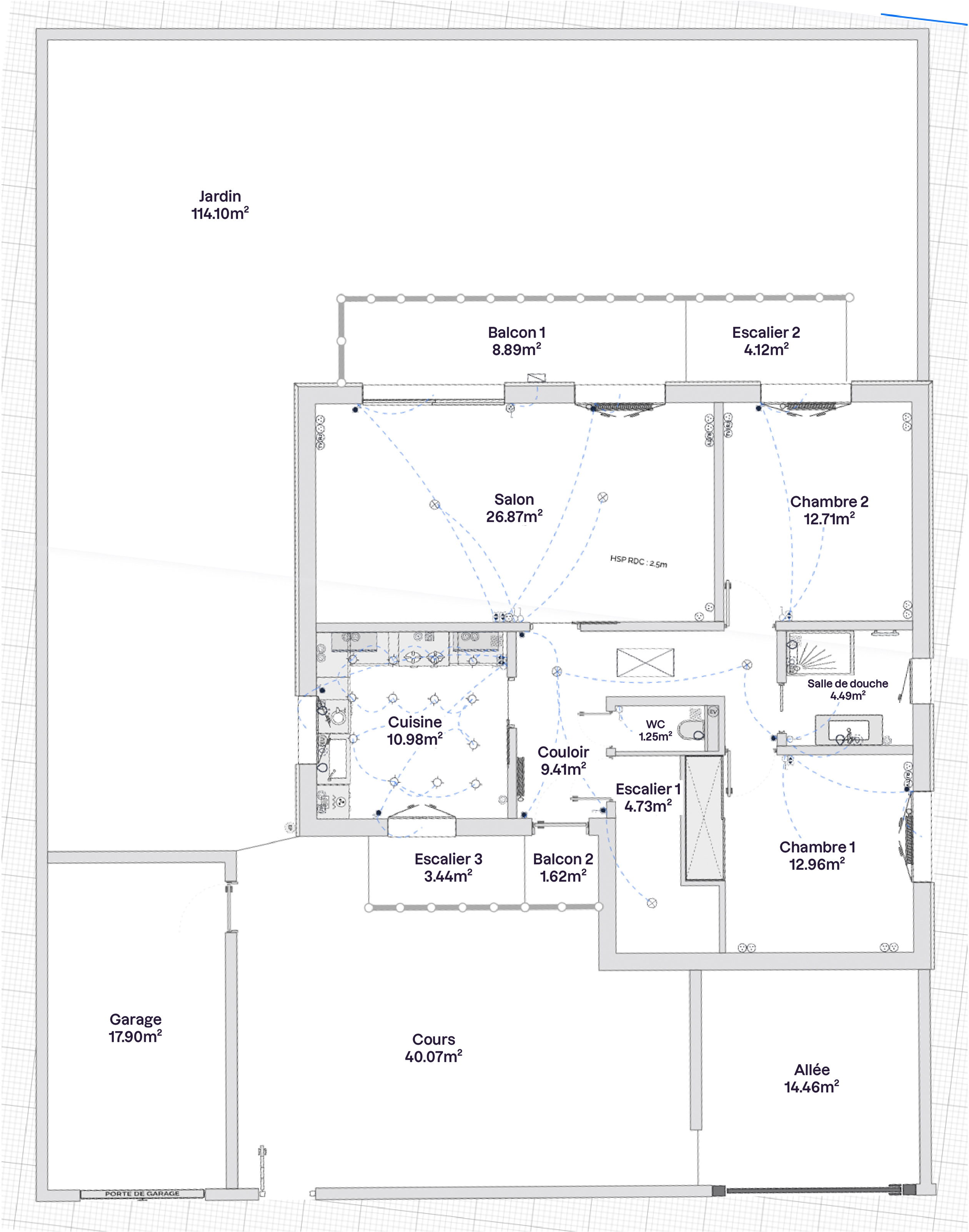
Cette analyse servira de base pour guider vos recommandations techniques et établir un plan d’action adapté aux besoins des clients. Voici le plan :

Plan d’un niveau avec jardin, garage, cour et allée. Intérieur : salon, cuisine, deux chambres, salle de douche, WC, couloir, deux escaliers et deux balcons.
Plan fourni par vos clients

Mission 

À partir du plan fourni, identifiez et décrivez les éléments architecturaux et thermiques essentiels du rez-de-chaussée :

  • Les murs entre le salon et la chambre 2 sont-ils porteurs ?

  • Décrivez pour chaque pièce combien y’a-t-il de fenêtres et de quel type sont-elles ?

Votre capacité à interpréter correctement ces informations est clé pour anticiper les contraintes techniques et énergétiques de la rénovation.

Une fois que vous avez fini, vous avez ce corrigé à disposition.

En résumé

  • Il est important de savoir repérer sur un plan les murs (porteurs et non porteurs), les ouvertures et les volumes intérieurs. 

  • Pour analyser les niveaux et étages, on peut s’appuyer sur les côtes altimétriques. 

  • Les cotations indiquées sur un plan correspondent au cahier des charges dimensionnel que doit respecter les professionnels qui réaliseront les travaux.  

Vous avez désormais les bases pour lire un plan d’un futur chantier de rénovation. Maintenant, zoomons et passons à la représentation des infrastructures techniques. 

Et si vous obteniez un diplôme OpenClassrooms ?
  • Formations jusqu’à 100 % financées
  • Date de début flexible
  • Projets professionnalisants
  • Mentorat individuel
Trouvez la formation et le financement faits pour vous